Hoy se anunció en Bariloche la ampliación (no muy grande) y las reformas (quizás más relevantes) que tendrá el aeropuerto, que en algunos meses del año suele ser el TERCERO en movimiento total de pasajeros.
En líneas generales se amplía bastante el sector internacional y un poco el nacional. Pero… es un aeropuerto que usa el sector internacional para nacional cuando no están estos, o sea que en temporada de verano por ejemplo CASI que es full nacional, cuando tiene muchos vuelos de cabotaje. Ahora me imagino que solo se interrumpiría en los vuelos de SKY que son algunos días en la semana.
Lo curioso es que el aeropuerto hoy tiene tres mangas y seguirá con tres mangas… pero una la mueven o ponen una más nueva, en el extremo internacional.
Personalmente creo que el aeropuerto tiene que ampliarse mucho hacia el lado de la ciudad, yendo por sobre la vieja terminal… supongo que eso será con la siguiente ampliación
Vamos con los renders y abajo está la info oficial. Acá una síntesis donde lo que se muestra es el aumento de lo internacional. Con la aclaración del uso mixto

Y esto es lo que se ampliaría, en azul, más mover la manga de la izquierda, hoy más en el centro, hacia el extremo izquierdo lo que permite el embarque por plataforma de ese avión que queda en el medio

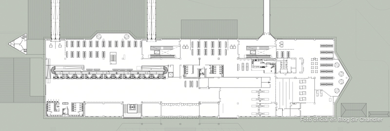
Esto sería lo actual, en el nivel de PLANTA BAJA

Y así se vería ahora, con una cinta doble para arribos de cabotaje, pensando en un Airbus 330 o seguro el airbus 321… y una cinta más grande en internacional

Hablamos de este lugar

Luego si miramos en planta alta, en zona de embarque, esto es lo actual

Y lo que veo, a simple vista además de la ampliación del área de embarque que crece hacia la plataforma, es que corren los espacios de escaleras que hoy cortan la circulación y achican mucho los espacios. Por eso también que esa manga del medio se vaya al extremo acomodaría mejor a la gente

Estas son las imágenes de como quedarían

Veremos cuanto tiempo son

Y este render con bruma me da muy video juego 😉

No es una ampliación más grande, estimo, porque en 2022 se había inaugurado el cambio que tuvo que fue importante donde movieron el mega bar que había hacia abajo y se sumó la tercera manga y mucho más espacio para embarcar.
Pero lo que destacan es la operación simultánea de 6 aviones, lo cual en muchos momentos del año se puede dar seguramente entre los vuelos locales, los charters de estudiantes de Andes, los vuelos estacionales o charters de Latam, Gol y Azul…
Ojalá la provincia o la nación o Rapa Nui arregle la ruta de acceso al aeropuerto.
El comunicado
SE AMPLIARÁ Y REMODELARÁ LA TERMINAL DEL AEROPUERTO DE BARILOCHE
Con una inversión de U$S 15 millones, se sumarán 1750m2, dos nuevas cintas de equipaje y se reemplazará una manga por nueva tecnología.
Se podrán procesar los pasajeros de hasta 6 vuelos en forma simultánea.Bariloche, 4 de diciembre de 2025.- Aeropuertos Argentina presentó hoy el proyecto de ampliación y remodelación de la terminal de pasajeros del aeropuerto de Bariloche, que sumará 1750 metros cuadrados y le dará mayor capacidad operativa para procesar hasta seis vuelos en forma simultánea, en un contexto de fuerte crecimiento del número de pasajeros y de operaciones aéreas.
Las obras, proyectadas en conjunto con el ORSNA (Organismo Regulador del Sistema Nacional de Aeropuertos) y la Secretaría de Transporte, tienen como objetivo mejorar la infraestructura existente y generar mayores espacios en las áreas de embarque doméstico e internacional, con el fin de optimizar la experiencia de los pasajeros y facilitar la operación. El aeropuerto de Bariloche es uno de los que registra mayor crecimiento en el país, con un promedio mensual de 230.000 pasajeros en 2025.
La ampliación contemplará la incorporación de 1750 nuevos metros cuadrados de terminal y 2700 metros cuadrados de superficie de remodelación, una nueva manga para reemplazar y modernizar una de las existentes, dos nuevas cintas de equipaje para arribos cabotaje -sumando un total de cuatro-, dos nuevos locales gastronómicos, nuevas áreas de espera en preembarque y nuevos sanitarios. Además, se incorporará un embarque flexible que incrementará la cantidad de asientos en las áreas de espera, ampliando la oferta de locales comerciales y gastronómicos y mejorando así, la experiencia del usuario con mejores servicios dentro del aeropuerto.
La presentación se realizó en un acto en la terminal y estuvo a cargo del CEO de Aeropuertos Argentina, Daniel Ketchibachian, y del gobernador de Río Negro, Alberto Weretilneck. Estuvieron presentes el intendente de Bariloche, Walter Cortés; el director de Infraestructura de Aeropuertos Argentina, Lucas Monsalvo y el gerente general de la Unidad de Negocio Oeste de Aeropuertos Argentina, Sergio Rinaldo, entre otros.
En la apertura del acto, el Gobernador de la provincia indicó que “Para una ciudad como Bariloche, que no para de crecer turísticamente, son fundamentales estas obras que generan la infraestructura necesaria para albergar dicho crecimiento. Para esto, es fundamental la acción público-privada para poder consolidarlo. Agradezco a Aeropuertos Argentina que siempre está haciendo obras en nuestro aeropuerto de Bariloche que tiene 2,5 millones de pasajeros al año. Esto no hay que naturalizarlo: es impresionante”.
Ketchibachian, por su parte, dijo que Aeropuertos Argentina trabaja en forma conjunta con el ORSNA y la secretaría de Transporte para generar las condiciones que permitan a los aeropuertos tener la capacidad de absorber el crecimiento de pasajeros y de una mayor demanda de operaciones por parte de las líneas aéreas. “Estamos comprometidos en ejecutar todas las obras necesarias para brindarles a las líneas aéreas y a los pasajeros los mejores servicios y comodidades para vivir una gran experiencia. Con un plan como el que presentamos hoy, aspiramos a que el aumento en la cantidad de pasajeros no encuentre obstáculos en las terminales para seguir creciendo”, dijo el CEO de Aeropuertos Argentina, quien resaltó que para alcanzar ese objetivo “es fundamental el trabajo conjunto entre los sectores público y privado”.El proyecto de ampliación contemplará una inversión aproximada de U$S15 millones, e incluirá:
-La ampliación de los patios de valijas y la incorporación de dos nuevas cintas de equipaje en arribos de cabotaje, lo que permitirá una mayor capacidad y agilidad en la entrega de valijas.
-Nuevos boxes para Migraciones que mejorarán los procesos de control, reduciendo los tiempos de espera.
-El reemplazo de una de las mangas por una completamente nueva, modernizando aún más la infraestructura y elevando el confort de los pasajeros.
-La incorporación de dos nuevos núcleos verticales en la planta alta tiene como propósito optimizar el flujo de pasajeros, tanto en partidas como en arribos, y permitir la realización simultánea de embarques y llegadas.
-Un embarque flexible que incrementará la cantidad de asientos en las áreas de espera, ampliando la oferta de locales comerciales y gastronómicos y mejorando así, la experiencia del usuario con mejores servicios dentro del aeropuerto.
-En la planta baja se reconfigurará el espacio existente con el objetivo de mejorar la eficiencia operativa y la circulación de personas.
-La renovación de sus fachadas con un diseño contemporáneo y funcional que reflejará los altos estándares de calidad de la infraestructura.El proyecto en números:
o 1750 m2 nuevos de terminal
o 2700 m2 superficie de remodelación
o 11.00 m2 de superficie existente
o 1 nuevo puente con manga de embarque (en reemplazo de una existente)
o 2 nuevas cintas de equipaje para arribos cabotaje, sumando un total de 4
o 2 nuevos núcleos de circulación para embarques y arribos
o 2 nuevos locales gastronómicos
o Nuevas áreas de espera en preembarque
o Nuevos sanitariosEste proyecto completa las obras habilitadas en 2022, cuando se refuncionalizó la terminal y se modernizó la infraestructura con 24 puestos de check in, 6 puertas de embarque, 3 mangas, 3 cintas de equipaje, ampliación del hall de partidas, ampliación de preembarque, ampliación del sector de retiro de equipajes, nuevos locales comerciales, nuevos sectores gastronómicos y nuevos núcleos sanitarios.
El aeropuerto de Bariloche se consolidó como uno de los aeropuertos más importantes del país, con 2,3 millones de pasajeros movilizados en el transcurso de 2025, con un promedio diario de aproximadamente 7 mil pasajeros. Esta cifra asciende a 10 mil pasajeros diarios promedio en la temporada invernal, donde la estacionalidad de la demanda incrementa las operaciones aproximadamente en un 50%.
Actualmente, operan Aerolíneas Argentinas, Flybondi y JetSmart regularmente durante todo el año.
Durante el invierno, se suman Latam y Sky (que ya operaron en la temporada de verano) y se le suman Azul y Gol en esta temporada de invierno que conectan la ciudad con destinos nacionales como Aeroparque, Ezeiza, Córdoba, Mendoza, El Calafate y Rosario e internacionales como Santiago de Chile. También, este invierno se sumarán nuevas opciones de rutas internacionales: Azul con vuelos a Campinas, Confins y Porto Alegre; y Aerolíneas Argentinas, Gol y LATAM hacia San Pablo, fortaleciendo la conectividad con Brasil.En cuanto a la seguridad operacional, durante los meses de invierno se lleva adelante el Operativo de Control de Hielo y Nieve que inicia el 1° de mayo y se extiende hasta el 30 de septiembre, para garantizar operaciones seguras durante los momentos meteorología adversa. Para llevarlo adelante se trabaja con personal y maquinaria especializados que facilitan todas las fases de la operación aeroportuaria, desde el aterrizaje y despegue de aeronaves hasta su estacionamiento en la plataforma, incluso en las condiciones climáticas más desafiantes del invierno.
Con estas obras, Bariloche cuenta ahora con un aeropuerto completamente renovado, moderno y funcional, preparado para acompañar el crecimiento del turismo, la economía regional y conectividad aérea del país. Su nueva infraestructura ofrece una experiencia más cómoda, segura y eficiente para todos los pasajeros.
Acerca de Aeropuertos Argentina
Aeropuertos Argentina nació en el año 1998 como AA2000 con el objetivo de desarrollar y operar terminales aéreas en el país, constituyéndose en uno de los mayores administradores privados del mundo con 35 aeropuertos en operación.
Hoy cuenta con más de 2700 empleados que trabajan con el objetivo de cumplir con los más altos estándares internacionales de calidad en servicios y en seguridad, los 365 días del año. Es una de las 20 mejores empresas
para trabajar en Argentina según el ranking de Great Place to Work, autoridad mundial en cultura organizacional.
Desde el inicio de la concesión realizó obras de gran envergadura y modernización en los principales aeropuertos del país, incorporando tecnología de última generación. Asimismo, contribuye con el desarrollo social, económico y cultural, convirtiéndose en un referente regional e internacional de la industria aeroportuaria. Su propósito es facilitar la conexión de personas, bienes y culturas para contribuir a un mundo mejor. Aeropuertos Argentina es parte de Corporación América Airports, compañía que opera y administra 53 aeropuertos en 6 países: Argentina, Armenia, Brasil, Ecuador, Italia y Uruguay.
Más información en: www.aeropuertosargentina.com

Resumen
El aeropuerto de Bariloche será ampliado y remodelado con una inversión de U$S 15 millones. Se sumarán 1750 m² nuevos, dos cintas de equipaje, una nueva manga y más áreas de espera y servicios. Permitirá operar hasta seis vuelos simultáneamente, mejorando la experiencia de los pasajeros y adaptándose al crecimiento del turismo y el tránsito aéreo en la región.
Datos para San Carlos de Bariloche
- Todas mis notas de Bariloche https://www.sirchandler.com.ar/tag/bariloche/

- Algunos lugares para comer en Bariloche
- El buscador de precios para ir todo el año en avión con el mejor precio en cualquier aerolínea
- Bariloche es la ciudad argentina con mayor cantidad de alquileres de autos. Podés tener descuento con el código SIRCHANDLER en bookingcars en muchas de las empresas que hay en el aeropuerto. El código para el descuento lo ponés en la pantalla final y acá te explico como. Pero encontrarás alquileres en empresas líderes como Hetz, Taraborelli, Fit, Avis, Alamo, Localiza, etc!
- Experiencia de alquiler de autos en Bariloche
- Hoteles en Bariloche más relevantes vía booking https://www.booking.com/city/ar/san-carlos-de-bariloche.es-ar.html
- Los hoteles más baratos actualmente en Booking https://www.booking.com/budget/city/ar/san-carlos-de-bariloche.es-ar.html
- Departamentos para turistas con alquiler seguro vía booking
- Airbnb en Bariloche para muchas fechas.
- Excursiones en Bariloche
- Mi página de Bariloche en el blog https://www.sirchandler.com.ar/bariloche/
Descubre más desde Sir Chandler
Suscríbete y recibe las últimas entradas en tu correo electrónico.




¿Cuándo sale el Silent Hill – The Return Of The Vuriloches?.
Alto miedo esa foto…
jajaja buen título!
Esta impresentable la ruta de acceso. Es una vergüenza.
cuanto lleva así?
La ultima vez que la parcharon creo que fue cuando vino Obama, hace como10 años
Puede ser!
Agregale que es un carril por lado, se hace eterno salir del aeropuerto.
Medio amarrete, deberia haber un transporte sobre rieles hasta el centro tambien usando parte de las lineas del roca
Pa que? Hay un colectivo destartalado, con frecuencias muy separadas, que cobra fortuna para ser transporte público de línea regular, que muchas veces se llena tanto que da miedo cuando sube la primer pendiente…
Ay Rio Negro y, especialmente, Bariloche. Tan linda, pero mucho por mejorar. De la Bustillo y otras cuestiones mejor no opino… se haría muy largo.
Bien por la renovación/ampliación del aeropuerto. Muy necesario. Colapsa de gente. Especialmente, cuando hay grupos de viajes de egresados
EEEEEEEEN teoria…… https://www.rionegro.com.ar/politica/esta-el-proyecto-para-la-ruta-al-aeropuerto-de-bariloche-seran-56-km-por-3-600-millones/
ojalá
Seguiremos esperando sentados una taxiway hacia 11 🫠
Caro pero cuantos vuelos salen desde esa?
yo una sola vez despegué de ahi.
Si hay que sacar la vieja terminal y AL MENOS hacer más plataforma
Ademas de agrandar y arreglar la ruta de acceso con 2 carriles x mano, es necesario lo mismo para el vergonzoso aceso a bariloche que se quedo en los 70 con ese camino de 2 manos sin salidas adecuadas ni puentes sobre las vias de tren. Tanto ver los videos de china q bariloche parece el far west.
Muy interesante la nueva disposición de la autoridad de aviación (según Aviación Online) que dispone que la operación de las mangas en los aeropuertos serán competencia directa de los operadores de cada aeropuerto y no de las compañías
de servicios de rampa (no tengo la menor idea de que va a cambiar pero pareciera bueno 🤣🤣)
Tiene que ser bueno…
Hola, llaman a licitacion para arreglo ruta 80 en marzo..
te dejo el link oficial:
https://rionegro.gov.ar/articulo/56943/bariloche-obras-en-el-aeropuerto-y-anuncio-clave-por-la-ruta-80
ojalá lo hagan bien!
Sir, cooooonsulta 🙂 Alguna idea de por qué el 28 de Marzo aparecen 2 vuelos directos de Montevideo a Bariloche pero después no. Ni tampoco figuran vuelos desde Bariloche a Montevideo. Raro. Que andes bien che.
hola Daniel, ni idea! no se donde tampoco