Ayer hubo una presentación de las obras que tendrá Aeroparque en los próximos meses, porque siempre Aeroparque está en obras de algo… porque también no nos damos cuenta pero cada vez hay más pasajeros pasando por ahí. Y mostraron varios puntos que cambiarán en los próximos dos años.
Pero le dedicaré un post aparte a todo eso para marcar bien los puntos que se mencionaron.
Dejo para un primer post algo que consultan mucho y que confirmo el uso que se le da en la Argentina a los VIPS o lounge de aeropuertos, es el más intensivo en toda la región…
Aeroparque durante años no tuvo un salón, fundamentalmente por la falta de espacio, hablando de la zona de embarque. Si había y hay uno en la zona general antes de seguridad, pero es muy chiquito.
Hace algunos años se inauguró el Amae que está próximo a la puerta 1 de la zona de embarque y lo mejor que tiene es la vista a la plataforma. Reviso la nota que linkeo y en realidad arrancó CASI hace dos años, porque fue finales de enero 2024. Parece que mucho más…

Pero ese salón siempre quedó chico, no solo por el movimiento de Aeroparque, también por lo mencionado arriba del uso intensivo por el beneficio bancario que tienen muchos argentinos (o residentes)
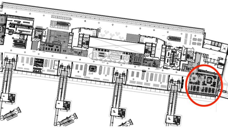
La noticia es que ese salón ya no será el único. Acá en este plano ACTUAL de Aeroparque podemos ver donde se encuentra ese Amae

Ayer confirmaron lo que se sabía que estaban trabajando en usar todo un espacio desaprovechado en el mismo nivel de embarque y con vista a la calle, para poner más asientos, un par de locales comerciales y un nuevo salón vip que tendrá 730m2 y 280 asientos disponibles. Acá en el mapa se ve la ubicación, donde todo será en la zona de pre embarque, o sea después de seguridad

Por si no se ubican es pegado al vidrio de la calle por lo que se está cortando el pasillo entre el estacionamiento del nivel 1 y el patio de comidas de ese mismo nivel.
Porque desde que pusieron el nuevo lugar de seguridad, todo eso quedó inutilizado. O sea lo que sigue detrás de este pasillo es lo que se «tapiará» para empezar las obras.

¿Cuándo estaría listo?
Octubre 2026
¿Y en internacional habrá un salón vip?
NO
No hay lugar
Igualmente en el otro post pondré las obras que se vienen, donde internacional será agrandado considerablemente, tanto que se «comerá» el patio de comidas del piso superior… algo que es muy necesario porque es donde más se creció en ese espacio, pero manteniendo la chance de ser flexible con el embarque nacional.
En breve los detalles de las demás obras anunciadas.
Chau espacio donde se juntaban los egresados y sus padres ansiosos antes de cada viaje desde ahí 😉

Datos para Aeroparque
- Todas las formas para moverse entre Aeroparque y Ezeiza https://www.sirchandler.com.ar/2026/01/viajar-entre-ezeiza-y-aeroparque-todas-las-opciones/
- Todos los colectivos que llegan a Aeroparque https://www.sirchandler.com.ar/2025/03/los-colectivos-que-llegan-a-aeroparque/
- El transfer de Tienda León https://www.sirchandler.com.ar/2019/11/traslado-hacia-o-desde-ezeiza-con-tienda-leon-cronica/
- Todas las notas sobre Aeroparque https://www.sirchandler.com.ar/tag/aeroparque/
- Pagar menos por el estacionamiento en Ezeiza y Aeroparque vía Whatsapp https://www.sirchandler.com.ar/2024/08/pagar-el-estacionamiento-del-aeropuerto-via-whatsapp-para-tener-un-descuento/
- ¿Se puede subir con comida y bebidas a los aviones? https://www.sirchandler.com.ar/2017/07/se-puede-subir-liquidos-comida-al-avion/
- Airbnb en Buenos Aires. Podés buscar y cotizar acá.
- Hoteles en la zona de Aeroparque https://www.booking.com/airport/ar/aep.es-ar.html
- Viajá con localizadores de equipaje! Aprobado por las aerolíneas tenés disponibles para los iphone, android (hechos por Motorola) y los específicos de Samsung
- Sección especial del Aeroparque en el blog https://www.sirchandler.com.ar/aeroparque/
Accesorios fundamentales para viajes a bajo precio con envío a toda la Argentina
- Balanza de valijas y adaptador de enchufes con USB https://mercadolibre.com/sec/1LEu69X
- Bolsitos organizadores de equipaje https://mercadolibre.com/sec/156JsqB
- Candados APTOS TSA para viajar a Estados Unidos https://mercadolibre.com/sec/1JDJfxo
- Localizadores de valijas para Android o Iphone https://mercadolibre.com/sec/1Hay8Xy
- Mochilas aptas para pasar por las low cost en Europa con compresión de espacio https://mercadolibre.com/sec/2FzXboV
- Mi lista general en Mercado Libre con muchos artículos para viajeros https://mercadolibre.com/sec/2doZxao
Descubre más desde Sir Chandler
Suscríbete y recibe las últimas entradas en tu correo electrónico.




Excelente nota Sir muchas gracias. O sea internacional en Aep cero chances y al reves nacional en Eze nada, correcro?
Aeroparque cero chances por lo que me dijeron, porque además habrá obra grande ahí… y no está previsto
Ezeiza si hay chances porque lo dijeron en su momento, pero aun no se presentaron esas obras… las espero!!! 😉
Como alternativa en AEP internacional está el Outback. El desayuno no me convenció mucho, almuerzo viene mejor
En Ezeiza nacional, el Outback lado tierra con VAC y boarding (a veces sí a veces no) y te dan crédito, mucho mejor que el de AEP
si, totalmente
y gastronómicamente es mejor que lo de cualquier vip
pero en internacional de AEP tienen que mejorar el espacio general, y van por eso
Outback lado tierra son unos capos. Buena comida y solo te piden qr y a disfrutar sin culpa…..ni problemas de conciencia….
Al hacer este nuevo salon Vip en Aeroparque, me imagino que sacan el de Amae (mal ubicado) y en ese espacio les sirve tanto para agrandar la terminal como para colocar una nueva puerta de embarque no?
nop… siguen los dos
no había ahí sala de embarque, se usó la parte del fondo que estaba como libre. Había un barcito hace años
esperemos no sea nada mas que un anuncio… pues para el aeropuerto de Córdoba también ya anunciaron varias veces que ampliarán el actual salón vip… hasta ahora solo viene siendo un mero anuncio
que agranden el aeropuerto… lo que importa 😉
igual vi que en el nuevo proyecto era distinto…
Si claro, proyectos, anuncios, planes pero por ahora nada concreto en Córdoba. Lo he visto al masterplan del aeropuerto de Córdoba que nos mostrastes, veremos que hacen en el 2026
si pero ese anuncio reciente es lo que se arranca si o si https://www.sirchandler.com.ar/2025/11/anunciaron-la-ampliacion-del-aeropuerto-de-cordoba/
“Siempre aeroparque esta en obras de algo”, la planificación al mango, todo ideado por grandes cráneos que actúan sobre la marcha
es que es como las autopistas de miami… y ahí no es falta de planificación, está en crecimiento constante… más que cada 4 años cambiamos de orientación política 😛
ARGENTINA
Hola Sir, el pasillo paralelo a la calle ya está cortado desde hace por lo menos un mes, seguro empezaron!!
gracias por la data!! ayer no pasé por ahí… pero si cerraron por innecesario y seguro ya están con esas cosas
Sir: si van a sacar el patio de comidas, donde mandar esos locales gastronomicos?
me falta esa presentación de internacional, que es la que quiero poner
porque no es que los sacan… LO DAN VUELTA
habrá más locales para la gente que espera
no se cuales, pero se gana ese espacio para el otro lado. Será interesante también ver que pasa del lado «calle» porque algo tiene que haber para compensar
Sacan el paso público que hay en planta alta por lo que se ve.
claro, pero ya está cerrado… porque había quedado inútil
Caminando por ese paso digamos hacia el centro de CABA, pasando el sector que decís que esta cerrado, del otro lado no había locales comerciales? Desaparecieron? O estoy equivocado?
cuando estaba el viejo acceso de seguridad estaba farmacity, garbarino…
Eso era
ya no estaban hace rato
Sir, un off-topic.
El 29/12 con la reapertura de Rosario deja oficialmente de ser Musculosa :D, se habilita la nueva terminal y las mangas (o al menos así lo anunciaron)
pero obvio eh!!! jajajaja
era por ese lado… pero siempre se supo eso, lo puse en las notas 🙂
veremos si me puedo escapar
Viernes de la semana pasada esa zona ya parecía estar cerrada. La entrada a Seguridad era sólo por el costado mirando al Patio de Comidas, sin tener que «dar la vueltita». Starbucks del Patio estaba cerrado x remodelaciones también. Todo con durlok provisorio, así que seguramente se levante pronto. Con este cambio, quedaría anulado el pasillo que terminaba en la cochera cubierta, no? Buena reutilización de m2 al pepe.
correcto! y en teoría… para segunda etapa cuando arranquen con internacional CRECEN hacia el río ahí arriba por donde está el starbucks, hasta la línea de árboles
Hola..habrá fast pass para vuelos de cabotaje en esta nueva modificación? Porque actualmente esta cerrado..
correcto… justo grabé un video hace un rato para hablar de eso. Será de acceso más cercano
No se si estoy bien orientado…. pero si el nuevo vip lo hacen en un pasillo hacia la calle no se podría entrar igual al tener un vuelo internacional? porque por lo que entiendo estaría en un lugar «publico» como el AMAE de planta baja
No no… no es más público todo eso. Se cierra lo público y pasa a ser pre embarque
buenas! gracias por la info. Dijeron algo de las obras de la costanera? La parte que está arriba del estacionamiento nunca la terminaron :S
entiendo que eso es parte del GCBA… no del aeropuerto
ese es el problema general del aeropuerto, esto es PSA, esto es el concesionario, esto es NACION, esto es GCBA y así no terminamos más 😛
Desde hace anos me preguntaba eso, la obra de parquizacion abandonada desde la pandemia, burocracia de jurisdicciones otro tema.. los trapitos frente a AEP, cobrándole a autos que no pueden estacionar por que esta prohibido… cero control de todo tipo, todo un merengue, siempre… 🙁
mirá que ahí tiene chances de lucirse el GCBA… pero no le dan bola
Una vez haciendo escala en Aeroparque me cruce a caminar un rato y me agarro la Policía como testigo de que estaban dándole un citatorio a un trapito jaja.
Encima el Poli de un lugar oscuro, casi creí que iba en cana, todo por una bondiola.
nooooooooooo
Viajé a Santiago desde Aeroparque hace poco, horario del mediodía, bastante gente, en Outback sólo aceptaban un pase de Dragon Pass por grupo familiar, zafamos porque como también aceptan Mastercard Airport Experience (con el otro plástico del mismo banco) pudimos entrar los 2. Con el movimiento que tiene Aeroparque es insólito que no tengan un salón VIP siendo hub para vuelos regionales saliendo desde el interior del país. En una época para ir de Mendoza a Neuquén en avión había que pasar por Aeroparque, no se si seguirá siendo así, tema para otro post
creo que hay vuelo con embraer… o al menos lo recuerdo
Tenes algún vuelo directo de AR. No se de las otras compañías
Hola Sir. No sería factible mandar algunos de esos hangares a Ezeiza y en ese sector poner posiciones remotas?
no se… entiendo que son necesarios
el tema también es que esas posiciones remotas están a 5km más o menos de traslado con buses… no se puede atravesar la pista
Hay algo sobre nuevas mangas en Aeroparque? Las posiciones remotas son un parto
nop… para poner más mangas hace falta estirar la terminal y no es lo que mostraron
Hace varios años habías hecho un post super detallado hasta con imágenes con planos de las futuras reformas de AEP que incluirían plataforma de posiciones que llegaban casi hasta «aquellos años/JET lounge» https://www.sirchandler.com.ar/2020/07/aeroparque-tendra-una-pista-600-metros-mas-larga-y-apuestan-a-ganar-mas-tierra-al-rio/ El proyecto parecía fabuloso, pero nunca lo creí, al menos me equivoque en su momento en parte… a la pista si la hicieron a nuevo 😛
claaaaa las cosas que se pierden con los cambios de cada gobierno
Igual en breve hago post similar… porque tengo la nueva presentación. Es mucho menos, pero algo hay
Sir, con la evolucion de pasajeros, inversiones, etc., etc. de AA2000.
Lo que mas queremos saber es si compraste $CAAP ?? (Corporacion America Airports)
🤑
jajajaj tengo CPAP que es parecido 😛
pero en su momento tenía… debería tener algo ahora… gracias por recordarlo, así me sirve para monitoear jajajaja
Y no van a hacer nada para que no se choque la gente que esta embarcando y los que pasan buscando otra puerta o yendo a alguno de los lugares de comida? Es de cuarta esta situación. Para mí, esto es lo primero que tienen que solucionar.
pero eso pasa en muchos aeropuertos del mundo eh… en los de USA en todos por ejemplo, cuando el vuelo no es de llegada internacional
Desde el aeropuerto (o aerogalpón) de Esquel, por embarcar a AEP, viendo cómo lentamente desembarcar el avión que acaba de llegar de AEP, y anticipando el lento desembarque y nuevo lento embarque en AEP rumbo a COR, me surge una gran duda.
Si (des)embarque remoto obligado, por qué no usar dos escaleras, como suele hacer Ryanair en Bruselas, por ejemplo, una de las pocas que te hace caminar por el tarmac? Amén de que los bondis en AEP podrían ser de esos anchos que se usan en Barajas e ir de a varios.
Eso descomprimiría bastante la terminal de AEP, donde cuando se arma la cola para el vuelo, ya no se puede pasar casi.
y con los 321 es más rápido así… pero bueno es más personal en plataforma.
no se de quien depende de que se pueda hacer o no
Supongo que para los que usan salón VIP es una buena noticia. A mi me molesta que para subir a embarque es solo casi por el sector norte. Hoy no andaba la escalera de subida más cercana al check de seguridad y había que caminar hasta el final para subir. Antes con el pasillo había una posibilidad más desde la otra punta, sobre todo si venis del estacionamiento.
bueno en las reformas que tengo que subir en un post, son varias escaleras mecánicas más en teoría. Y todo por el norte porque no habrá otro lugar por arriba «libre»
Buen día sir, no se si ya te lo habían informado, pero parece que ya los co titulares no tienen más accesos a los vips por visa airport, solamente los titulares, recién me entero
hola, es complejo lo de los cotitulares… entiendo que suele haber problemas
Hola, no me queda claro si el que comentas que esta cerca de la puerta 1 se puede ir si tenes viaje internacional por ejemplo brasil? Para estos casos solamente queda el que esta donde se hacen los checl on? Gracias
Buen Día, Sir! (Si ya lo respondiste, mil disculpas!) Viajo mañana tempranísimo desde Aeroparque a Río. Visa Companion te dice que hay 2 AMAE…¿Es correcto que el de Internacional está antes de Seguridad? Medio estresante, no? Sólo para saber si cuento con eso. Muchas gracias COMO SIEMPRE!
hola Andrea!
si si… NADA dentro de internacional… no lo usaría, puede haber demora en migraciones!
DENTRO tenés lo de Outback como beneficio
¡GRACIAS GRACIAS! Sospechaba pero sin tu confirmación…NI Viajo! jajajja Que estés muy bien! 😉
🙂